Explorando a precisão da modelagem BIM estrutural para projetos metálicos detalhados.
LocalizaçãoBrasília, DF
Ano2026
Ano do Estudo2026
ClienteEstudo Técnico
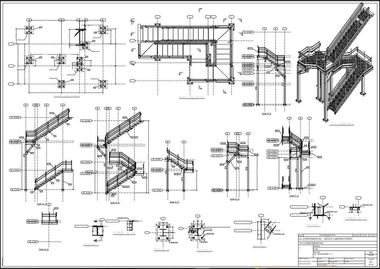
Estudo de modelagem estrutural desenvolvido no Tekla Structures, explorando técnicas avançadas de detalhamento BIM para estruturas metálicas. Este projeto técnico focou no desenvolvimento de conexões, chapas de ligação e detalhamento de componentes estruturais de uma escada metálica.
Aplicação de técnicas de detalhamento estrutural, explorando conexões parafusadas, soldadas e todos os componentes necessários para a fabricação e montagem da estrutura metálica.




Ferramentas Utilizadas
precision_manufacturing
Tekla Structures
Modelagem BIM estrutural e detalhamento de conexões metálicas.